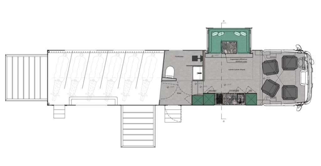
STX Horseboxes belsőépítészeti tervezése, Budapest
Tervezés éve:
2022
Tervező:
Kiss Johanna Eperke
Nettó alapterület:
24m²















További projektek
-
Eloise
Családi ház teljeskörű belsőépítészeti tervezése, Budapest
-
Hunter
Családi ház építészeti és belsőépítészeti tervezése, Szentpéterfa
-
Ivy
Tiny house tervezése, Maria Weinberg
-
John
Társasházi lakás belsőépítészeti tervezése, Szombathely
-
Lillian
Családi ház építészeti tervezése, Szentpéterfa
-
Madeline
Családi ház építészeti és belsőépítészeti tervezése
-
Primrose
Lakás belsőépítészeti tervezése, Graz
-
Thea
Családi ház belsőépítészeti tervezése, Szombathely
-
Willow
STX Horseboxes belsőépítészeti tervezése, Budapest

